Domaine Escattes
Conçu et réalisé par RD Invest Group, Domaine Escattes propose une expérience résidentielle unique, où l’élégance du patrimoine s’unit au confort du contemporain. Dans un mas authentique entièrement rénové, le projet donne vie à des lofts haut standing, spacieux et lumineux, pensés pour offrir un art de vivre rare, entre prestige et sérénité.
prestige et bien-être
Domaine Escattes offre également un ensemble d’espaces partagés haut de gamme, conçus pour favoriser le bien-être au quotidien :
-
Piscine extérieure paysagée pour profiter des beaux jours
-
Pool House et sa terrasse de 100m2
Domaine Escattes incarne un art de vivre rare
Plus qu’un simple lieu de vie, c’est un havre confidentiel et intemporel, destiné à celles et ceux qui recherchent l’excellence, la tranquillité et le confort d’un habitat hors du commun.
Étude & implantation
Plans de masse et situation géographique.
6 Logements haut standing avec terrasses, garages et parkings
Espaces communs :
Piscine chauffée 10×4
Pool House de 18 m2
Cour aménagée de 260 m2
Parc boisé de 1200 m2
Local vélo
Local poubelle
En plein cœur de village – St Étienne d’Escattes 30250
Livraison Avril 2026 Travaux en cours
Surfaces de 130m2 à 241 m2
Lot 1
Habitables: 241,75 m2
SDP: 250,22 m2
Lot 2
Habitables: 176,20 m2
SDP: 192,91 m2
Lot 3
Habitables: 218,52 m2
SDP: 240,27 m2
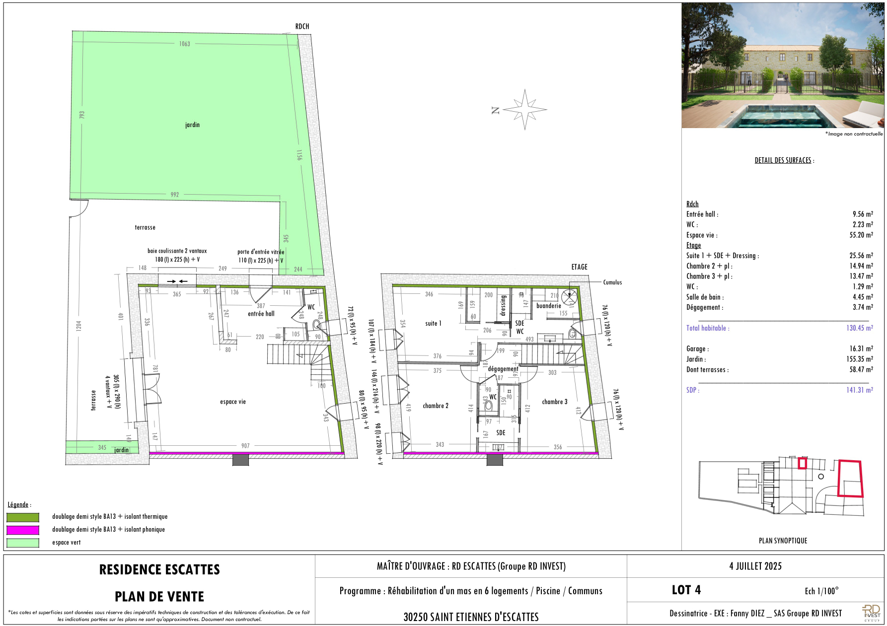
Lot 4
Habitables: 130,45 m2
SDP: 141,31 m2
Lot 5
Habitables: 180,09 m2
SDP: 195,40 m2
Lot 6
Habitables: 173,33 m2
SDP: 180,37 m2
Lieu
Départemant: Gard
Ville: St Étienne d’Escattes
Plein Coeur de la Vaunage
Lots
6 Logements Haut standing
Surface 130 à 240m2 Habitables
Lofts – aménagments personnalisables
Données techniques
Parc Boisé 1200 m2
Piscine Chauffée 10m x 4m
Pool House 18m2
Cour aménagée 260m2
Garages – Parkings – Local à vélo





























